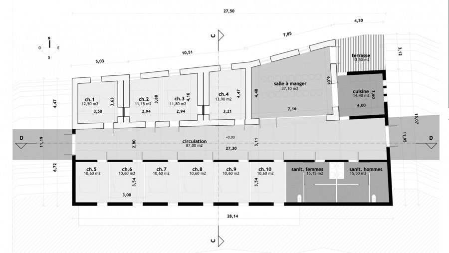
Centre d’accueil : hébergement + salle de danse à Balaguier sur Rance (12)
Maître d’ouvrage : Privé | Mission : Études Préliminaires | Surface : 470 m2 | Coût H.T : N.C
Maître d’ouvrage : Privé | Mission : Études Préliminaires | Surface : 470 m2 | Coût H.T : N.C